Sarah Thorisaen

Alive: Sonic Identities

Master Design Studio

Caroline Claus & Burak Pak

Sonic Urbanism Studio_L28 18-19

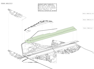
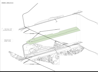
CREATING NEW AND POSITIVE SONIC IDENTITY?

Can I change this mostly negative perceived 'sonic identity' of this area and make it a positive and pleasant 'sonic identity'? Is it possible to revalue this urban area by blocking the sound of the metro?

CONCEPT NOISE?

Noise, or unwanted sounds, can be one of the most problematic environmental factors of both urban and rural areas, traffic noise in particular is a common problem. Elevated sound levels impact our physical health, stress levels, and quality of life in much the same way that other, more obvious forms of pollution affect us.

CONCEPT TRANSITIONAL URBANISM?

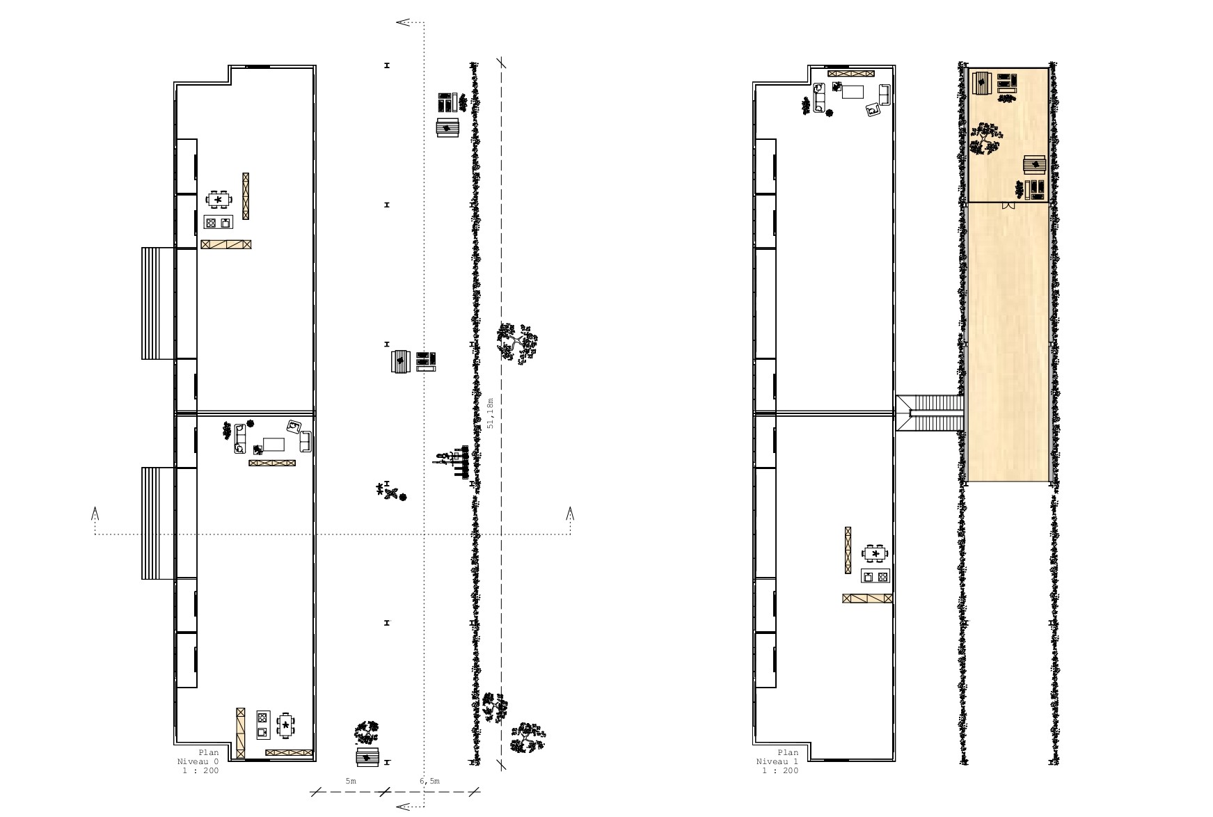
Transforming these undeveloped and unused open space along the Western ring railway L28 using sound. By adding new natural sounds and masking the sound of the metro, this alive' structure creates a new sonic identity' and brings people together. It transforms the sonic identity' of the region and makes it a nicer area, using sound.